Электрика весь комплекс работ
Тел: + 7 911 924 03 25

Разводка электрики в каркасном доме, схема прокладки проводов и электро точек.

схема разводки электрики в квартире студии схема разводки электрики в квартире студии схема разводки электрики в квартире студии схема разводки электрики в квартире студии схема разводки электрики в квартире студии схема разводки электрики в квартире студии схема разводки электрики в квартире студии схема разводки электрики в квартире студии схема разводки электрики в квартире студии схема разводки электрики в квартире студии схема разводки электрики в квартире студии схема разводки электрики в квартире студии

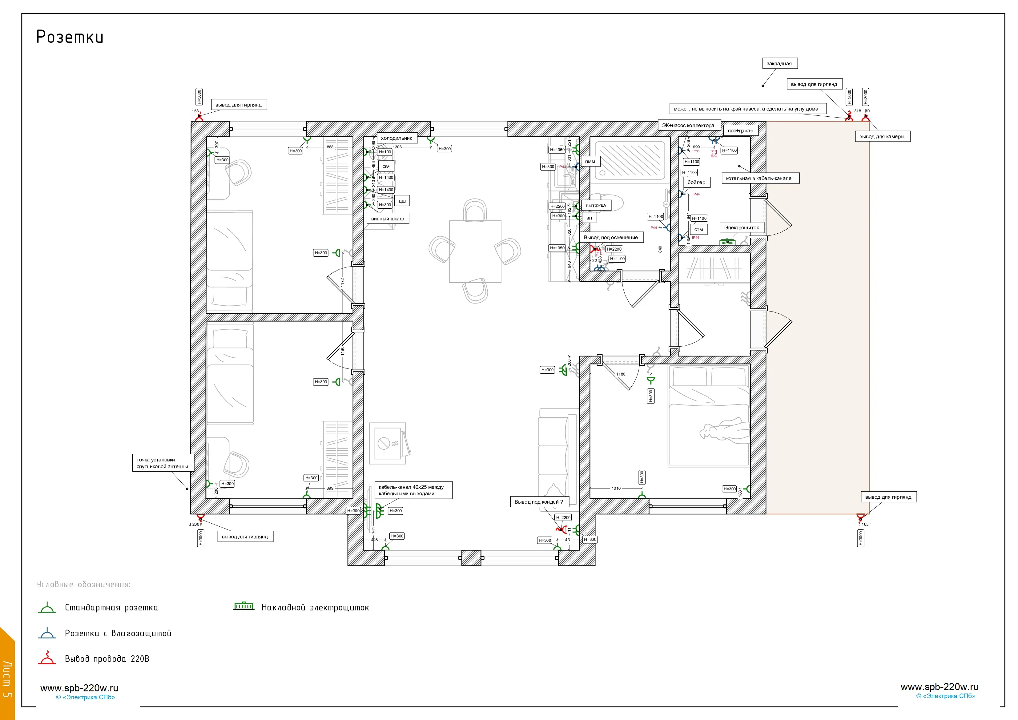
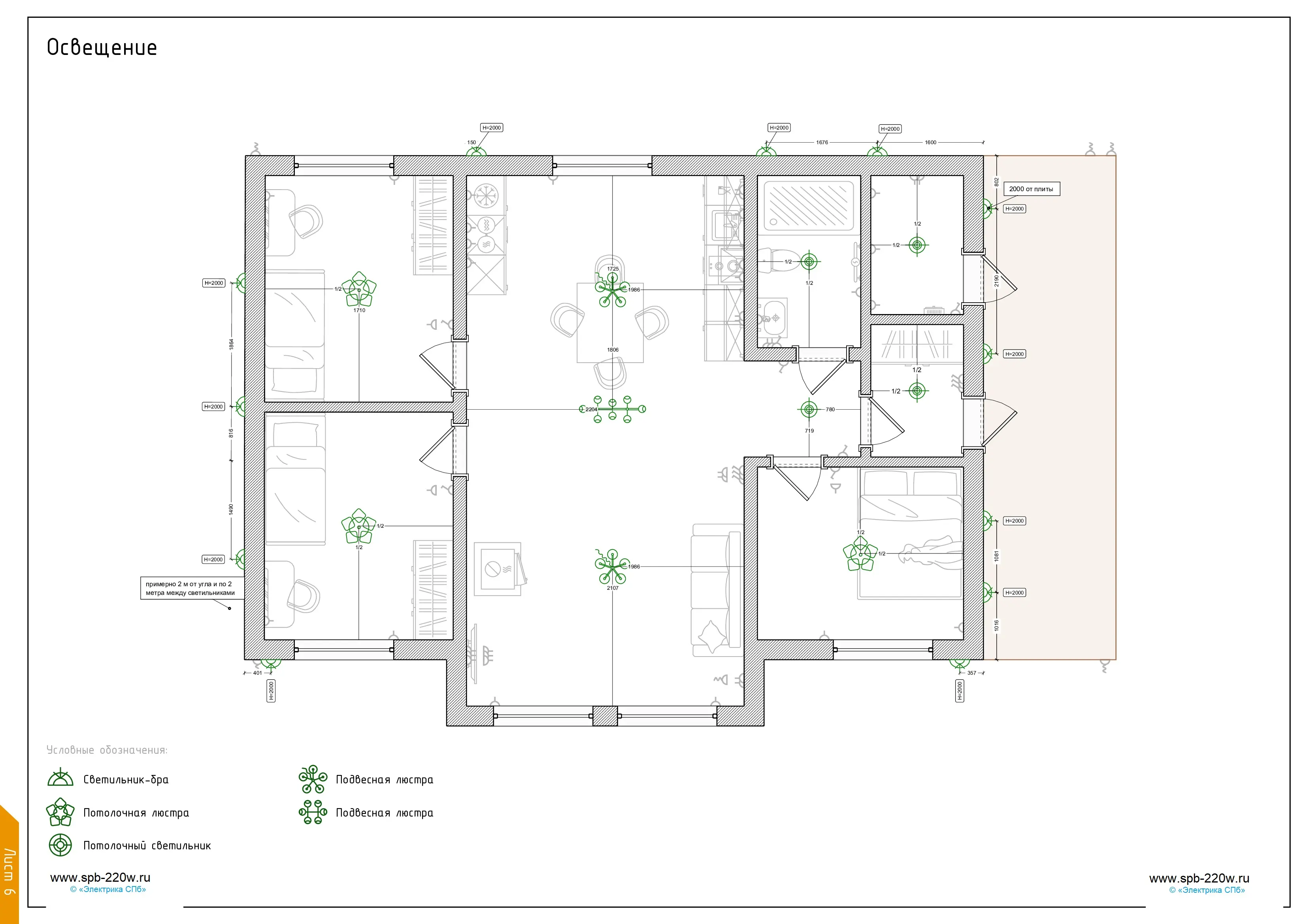
В проекте: планы помещений дома; количество и места установки розеток, осветительных приборов; развертка по стенам с указанием точек для монтажа розеток и выключателей.


Проект прокладки электрических проводов и монтаж элестро оборудования в частном доме, прислан нам для оценки стоимости электромонтажных работ. Сам дом одноэтажный, построен по каркасной технологии. Общая площадь дома 79 м2.

В доме помещения: спальные комнаты 9.72, 9.80, 8.12 м2; кухня гостиная 36.11 м2; санузел 4.06 м2; тамбур 2.80 м2; котельная 2.94 м2. И открытая терраса 15.22 м2, на которой монтируются светодиодные светильники точечные по контуру 12 штук.

Исходя из нашего 20 летнего опыта не всегда монтаж электрики делается точно по проекту. В процессе работ, зачастую по желанию заказчика добавляется количество электроточек и так же переносятся в другое место. И это нормально.

Конечно эти чертежи не подойдут к любому дому. Под каждый дом делается свой проект. Сначала заказчик с дизайнером решают где какая мебель будет стоять, исходя из готового плана построенного дома. И затем уже планируют размещение и количество элетрики (розетки, светильники и т. д.).

Для выполнения электромонтажных работ, нам достаточно эскизного проекта с указанием мест электроточек. А зачастую, прямо на объекте, с заказчиком прорисовываем на планах дома точки. Потом мы делаем замеры, для расчета количества проводки и составляем смету.

Конечно обсудив с заказчиком где и какие будут использоваться электрические приборы (электро плита, бойлер, насная станция, электро духовка и т. д.), мы прорисовавываем схему прокладки элетропроводки и необходимое количество и сечение электрических проводов.

Электрику делаем под ключ в СПБ и ЛО, квартиры, частные дома, загородные котеджи, бани, дачи. Работаем с 2009 года. Профессионалы с допусками до 1 500 Вт, все со стажем от 10 лет, высшее образование. Вопросы и консультации с 9-00 до 19-00 по рабочим дням и с 10-00 до 17-00 по выходным. (Ватсап, телеграмм, макс) тел. +7 (911) 924-03-25.


Монтаж электрики выполненные нашей фирмой в частных домах (в каркасных, из бревна, из газобетона), в квартирах, офисах, производственных и жилых помещениях под ключ, примеры работ. Для примера можете бесплатно скачать прект разводки электрики. Для рссчета стоимости электромонтажа вызовите нашего мастера электрика, он составит схему и мы сделаем смету с ценами на монтж элетсрики и материалы.

монтаж электрики в доме 90 метров
Монтаж электрики в доме из газобетона площадью 90 м. кв. подробнее
монтаж электрики в доме 170 метров
Разводка электрики в загородном доме из пенобетона 170 м. кв. подробнее
электрика в частном доме 200 метров
Разводка электрики в доме из газо силикатных блоков 220 м. кв. подробнее
электрика под ключ в доме 200 метров
Разводка электрики в доме из газобетона 200 м. кв. подробнее
электрика под ключ в загородном доме
Монтаж электрики под ключ в загородном доме 130 м. кв. подробнее
электрика под ключ в таунхаусе
Монтаж электрики под ключ в таунхаусе 240 м. кв. подробнее
электромонтажные работы в доме из газобетона
Электромонтажные работы сделаны в доме из газобетона под ключ подробнее
электропроводка в каркасном доме
Разводка электропроводки в каркасном доме под ключ подробнее
монтаж скрытой электрики в каркасном доме
Монтаж скрытой электрики в каркасном доме под ключ подробнее
монтаж электрики в доме из газобетона
Разводка электрики в доме из газобетона сделана черновая подробнее
электрика под ключ в доме из бревна
Электрика под ключ в доме из бревна 100 м. кв. подробнее
электрика в доме из пеноблоков
Электрика сделана в доме из пеноблоков 300 м. кв. подробнее

Скидка на монтаж электрики в квартире или загородном доме.

При монтаже электрики в зависимости от объема, Мы существенно сделаем Вам скидку.

заказать расчет