Электрика весь комплекс работ
Тел: + 7 911 924 03 25

Электрика в 3-х этажном частном доме, проект разводки и подключения.

проект разводки и подключения электрики для дома из газобетона проект разводки и подключения электрики для дома из газобетона проект разводки и подключения электрики для дома из газобетона проект разводки и подключения электрики для дома из газобетона проект разводки и подключения электрики для дома из газобетона проект разводки и подключения электрики для дома из газобетона проект разводки и подключения электрики для дома из газобетона проект разводки и подключения электрики для дома из газобетона проект разводки и подключения электрики для дома из газобетона проект разводки и подключения электрики для дома из газобетона проект разводки и подключения электрики для дома из газобетона проект разводки и подключения электрики для дома из газобетона

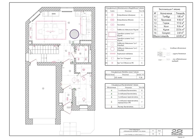
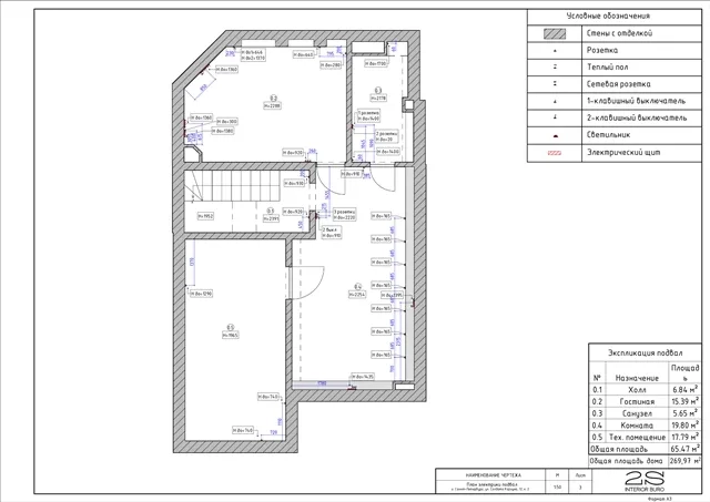
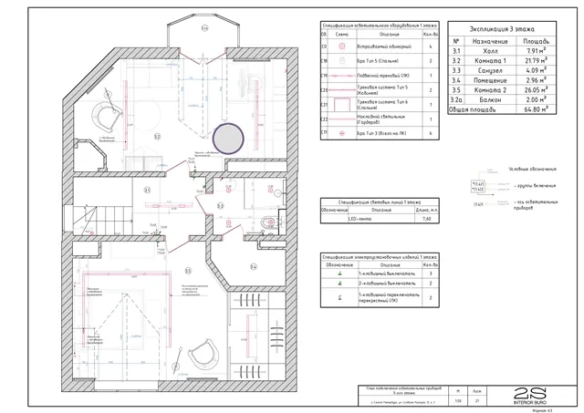
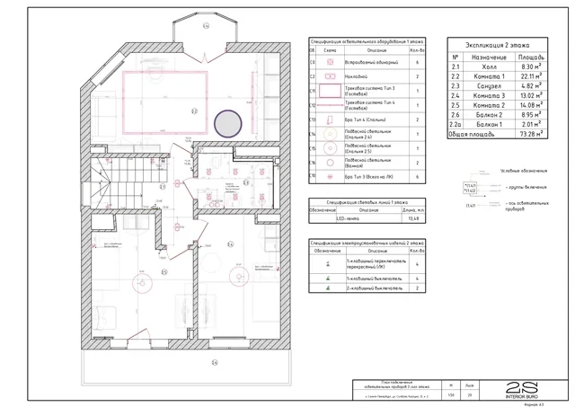
Загородный коттедж из газобетонных блоков. Площадь всех помещений 270 м2. На схемах чертежи разводки и подключения электрических точек.

ПРИМЕЧАНИЯ:

1. Предусмотреть электрические выводы/розетки накладные в местах установки системы защиты от протечек;

2. Расположение и привязки выводов электрики и электрических розеток для кухонного оборудования, вытяжки и рабочей поверхности уточнить по чертежам производителя кухни;

3. Все розетки, кроме особо обозначенных, установить на высоте 300 мм от уровня чистого пола до оси прибора;

4. Все розетки и выключатели установить с отступом в 250 мм от дверного проема, окна, стены или угла, если не указано иное;

5. Высоты даны от уровня чистого пола до оси приборов;

6. Привязки выводов под эл. полотенцесушители определить по месту;

7. Монтаж розеток и откосов измерять от нижнего края откосов;

8. Розетки и выключатели расположить посередине простенка/посередине между дверным коробом и стеной, если не указано иное;

9. Все выключатели и переключатели установить на высоте 900 мм от уровня ч.п., если не указано иное.

10. Высоту установки подвесных светильников определить на месте после установки мебели;

11. Привязки даны от уровня чистого пола до оси приборов;

12. Расположение и привязки светодиодной ленты кухонного гарнитура уточнить по чертежам производителя кухни.

Дизайн интерьеров данного дома и картинки мы разместили на другой странице нашего сайта, с фото дизайнерского освещения. Там показаны варианты накладных, подвесных и встраиваемых светильников (бра, люстр), для размещения в разных помещениях зтого дома.

Более полные чертежи и , Вы можете посмотреть и скачать для образца. Нужен ли разработанный с расчетами проект элетрики для частного дома. Нет не нужен. Мы как профессионалы, в любом случае делаем перерасчеты по нагрузкам на сеть от потребления к элетроточкам.

Дизайн интерьеров данного дома разработан талантливым дизайнером архитектором. Нам по предварительным наброскам расположения электроточек в этом доме, нам удобно и довольно четко посчитать (к-во проводки и гофры, соответственно материалы и работы) для составления рабочей сметы.

Вы можете бесплатно скачать (как образец) эти схемы монтажа электрики. Это Вам подойдет только как для сравнения и ознакомления. В каждом доме по разному размещают обычно всю электрику в соответствии с дизайн проектом, если таковой имеется.

Мы работаем как с эскизными, так и сертифицированными проектами по разводке электрики в жилых и нежилых помещениях и зданиях. Так выполняем электромонтаж и по нарисованным от руки схемам, согласованные предварительно с заказчиком.

Если Вам нужно сделать разводку электрики без проекта, пожалуйства, мы делаем и без проекта. Можно от руки по планам помещений нарисовать, где что будет находится (розетки, выкл. и т.д.) и затем посчитать смету.

Можно прямо на месте в помещениях, комнатах дома начертить на стенах места расположения точек и посчитать необходимое к-во материалов и выполняемых работ (составить предварительную смету).

Но в любом случае мы делаем рассчеты на нагрузку по электрическим проводам и электроавтоматам, от точки запитки к точке потребления!


Монтаж электрики выполненные нашей фирмой в частных домах (в каркасных, из бревна, из газобетона) под ключ, примеры некоторых работ. Делаем элетромонтаж по всей Ленинградской области и в самом городе Санкт-Петербурге (квартиры, частные магазины, гостиницы небольшие и т. д.).

монтаж электрики в доме 170 метров
Разводка электрики в загородном доме из пенобетона 170 м. кв. подробнее
электрика в частном доме 200 метров
Разводка электрики в доме из газо силикатных блоков 220 м. кв. подробнее
электрика под ключ в доме 200 метров
Разводка электрики в доме из газобетона 200 м. кв. подробнее
электрика под ключ в каркасном доме 190 метров
Разводка электрики под ключ в каркасном доме 190 м. кв. подробнее
Разводка скрытой электрики в частном доме
Разводка скрытой электрики в частном доме, стоимость в СПб. подробнее
черновая прокладка электрики в доме из газобетона
Черновая прокладка электрики в доме из газобетона, схема монтажа. подробнее
монтаж электрики в доме из газобетона
Электромонтаж выполнен в доме из газобетона. Стоимость и фото. подробнее
электрика под ключ в доме из газобетона
Электрика под ключ в доме из газобетона. Сметная стоимость. подробнее
электрика в коттедже из газобетона
Разводка электрики в коттедже согласно проекта, стоимость. подробнее
электрика в доме из газобетона
Электромонтажные в доме из газобетонных блоков, цены и фото. подробнее
скрытая электрика в каркасном доме
Скрытая электрика в каркасном доме, стоимость и фото работ. подробнее
разводка электрики в доме из кирпича
Черновая разводка электрики в кирпичном доме в гофре и штробах. подробнее

Скидка на монтаж электрики в квартире или загородном доме.

При монтаже электрики в зависимости от объема, Мы существенно сделаем Вам скидку.

заказать проектирование
Сервис обратного звонка RedConnect