Электрика проектирование и монтаж
Тел: + 7 911 924 03 25

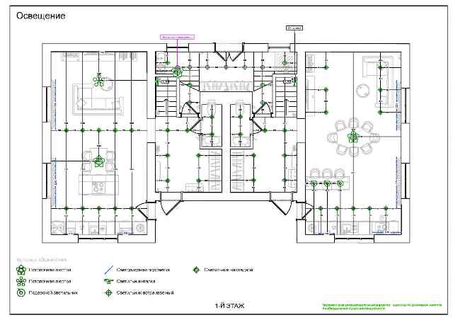
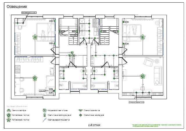
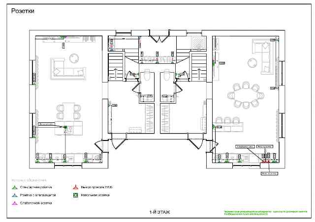
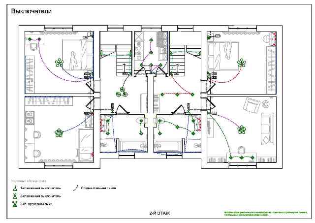
Разводка электрического кабеля в двухэтажном доме, готовые чертежи.

поэтажные планы 2 эт дома поэтажные планы 2 эт дома поэтажные планы 2 эт дома поэтажные планы 2 эт дома поэтажные планы 2 эт дома поэтажные планы 2 эт дома поэтажные планы 2 эт дома поэтажные планы 2 эт дома поэтажные планы 2 эт дома поэтажные планы 2 эт дома поэтажные планы 2 эт дома поэтажные планы 2 эт дома

На странице мы разместили типичнные чертежи поэтажных планов дома построенного из газобетона с указанием монтажа электрики, расстановки мебели, прокладки водоснабжения и других инженерных комунникаций.

На схемах указаны места расплоложения мест осветительных приборов, розеток, выключателей и других приборов с электро потреблением (стиральная машина, электро духовка, электрический бойлер и т. д.).

По ценам 2025/2026 года, стоимость электромонтажных работ, согласно данного проекта, примерно дом 300 м2 по 2 этажам * 1400 рублей за м2 (электромонтаж проводки скрытым способом) = 420 000 рублей.

Это средняя цена по Санкт-Петербургу. Мы обычно при сумме заказа согласно сметному рассчету более чем на 290 000 рублей , даем скидку в 15 процентов, или делаем заземление например бесплатно.

Так же предлагаем и делаем с приличной скидкой деревянные подоконники из фанеры шпонированной или на деревянную лестницу ступени и площадки из массива дерева (дуб, ясень, бук). Так как у нас есть отличные партнеры фирма © «Лестницы С-Пб».

У них своя столярная мастерская в центре Санкт-Петербурга, в которой их мастера краснодеревщики делают выше перечисленные столярные изделия.

На сегодняшний день, актуально стало делать электрику, по системе "умный дом". Хотим заметить экономит деньги. Например установив радио выключатели с датчиком освещенности, Вы уже съекономите на электричестве. И таких примеров много.

Мы уже описывали, на чем и как можно съекономить на электрике при ремонте квартиры или при стротельстве загородного коттеджа. Экономия при монтаже электрики:

- можно дешевле сделать элетрику, если установить радио выключетели и переключатели (меньше на 25 процентов проводки и электромонтажа);

- не делать штробы в стенах или перегородках, а положить плоский электрический провод необходимого номинала.

Гарантия на электрику от 15 лет. Расчет сметы сделаем за пару часов. Опыт электромонтажа с 2005 года. Профессионалы.

Новые технологии, экономия не в ущерб качеству, умный дом. Работаем по договору. Звоните! +7 (911) 924-03-25.

Примеры наших работ по монтажу электрики в частных домах из кирпича, газобетона, в деревянных (бревно/брус) и в каркасных, сделанные нашей фирмой в Ленинградской области и Санкт-Петербурге (2016-2023 годах).

разводка электрики в доме из кирпича
Разводка электрики в загородном доме из кирпича 240 м. кв. подробнее
электрика под ключ в доме из газобетона 300 м
Электрика под ключ в загородном доме из газобетона 300 м. кв. подробнее
разводка электрики в каркасном доме 150 метров
Монтаж электрики в каркасном доме площадью 150 м. кв. подробнее
монтаж электрики в доме 90 метров
Монтаж электрики в доме из газобетона площадью 90 м. кв. подробнее
монтаж электрики в доме 170 метров
Разводка электрики в загородном доме из пенобетона 170 м. кв. подробнее
электрика в частном доме 200 метров
Разводка электрики в доме из газо силикатных блоков 220 м. кв. подробнее
электрика под ключ в доме 200 метров
Разводка электрики в доме из газобетона 200 м. кв. подробнее
электрика под ключ в каркасном доме 190 метров
Разводка электрики под ключ в каркасном доме 190 м. кв. подробнее
электрика в коттедже из газобетона
Разводка электрики в коттедже согласно проекта, стоимость. подробнее
электрика в доме из газобетона
Электромонтажные в доме из газобетонных блоков, цены и фото. подробнее
скрытая электрика в каркасном доме
Скрытая электрика в каркасном доме, стоимость и фото работ. подробнее
электрика с ретро проводкой
Электрика проведена с винтажными проводами, стоимость монтажа. подробнее

Наши цены на электромонтажные работы в частных домах с прокладкой электро проводов и с установкой электрических приборов с оборудованием:

- цена за точку 400 рублей или от 500 руб/м.кв. площади загородного с открытой прокладкой проводов в гофре с наружной установкой розеток и выключателей;

- цена за точку 500 рублей или от 700 руб/м.кв. площади дома с прокладкой электрического кабеля в пластиковых кабель каналах с установкой наружных розеток и выключателей;

- цена за точку 600 рублей или от 900 руб/м.кв. площади коттеджа с прокладкой витого электрического провода (ретро проводка), с установкой ретро розеток и выключателей.

Стоимость электромонтажных работ за м2 площади частного дома. Прайс на элестромонтажные услуги с ценами на 2023 год.

Площадь, кв.м.

до 150

151-200

201-300

301-500

свыше 500

Цена, руб.

1 000 руб/кв.м.

850 руб/кв.м.

700 руб/кв.м.

600 руб/кв.м.

500 руб/кв.м.

Стоимость указана только за монтажные работы, без стоимости материала.

Скидка на монтаж электрики в квартире или загородном доме.

При монтаже электрики в зависимости от объема, Мы существенно сделаем Вам скидку.

заказать расчет
Сервис обратного звонка RedConnect