Электрика весь комплекс работ
Тел: + 7 911 924 03 25

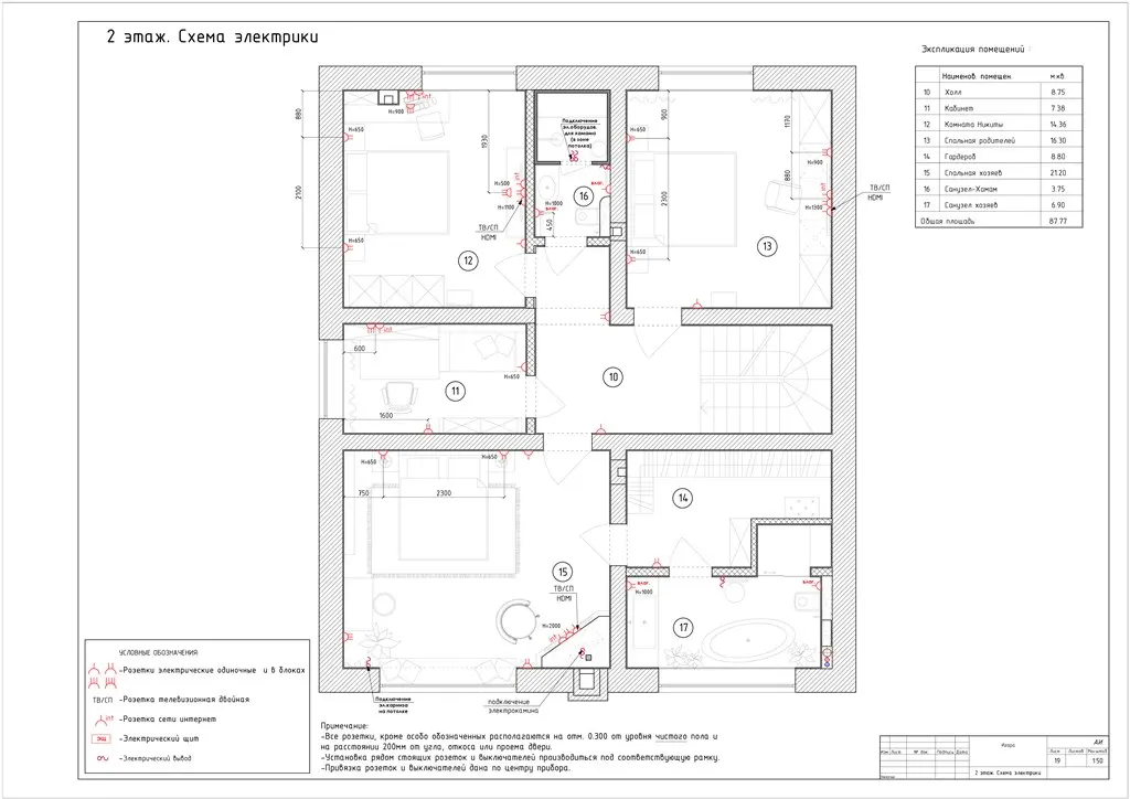
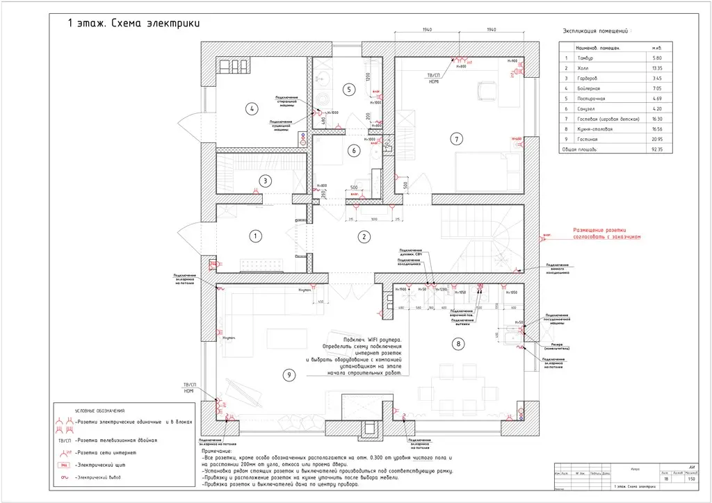
Прокладка электрика в загородном коттедже, пример разводки с чертежами.

схема монтажа электрики для загородного дома схема монтажа электрики для загородного дома схема монтажа электрики для загородного дома схема монтажа электрики для загородного дома схема монтажа электрики для загородного дома схема монтажа электрики для загородного дома схема монтажа электрики для загородного дома схема монтажа электрики для загородного дома схема монтажа электрики для загородного дома схема монтажа электрики для загородного дома схема монтажа электрики для загородного дома схема монтажа электрики для загородного дома

Примечание:

- Все выключатели, кроме особо обозначенных, располагаются на отметке 0.950 мм от уровня чистого пола и на расстоянии 200 мм от угла помещения, откоса или проема двepu.

- Установка рядом стоящих розеток и выключателей производится под соответствующую рамку.

- Привязку подсвети кухни уточнить после выбора модели и конфигурации с количеством мест.

- Светильники во влажных помещениях с коэфециентом защиты электрических приборов не менее IP55.

- Светодиодную ленту делать длиной не более 5 метров и через каждые 5 метров делать спайку.

- Все розетки, кроме особо обозначенных располагаются на отм. 0.300 мм от уровня чистого пола и на расстоянии 200 мм от угла комнаты, откоса или дверного проема.

Прайс на разводку и подключение электрических приборов (различного электрического оборудования) для загородных домов (коттеджей) из бруса, брвна, пено бетона, газобетоннвых блоков, кирпича, каркасных, из сиппанелей, с ценами на сезон 2026 года, при заказе электромонтажных работ на общую сумму от 250 000 рублей.

Стоимость электромонтажных работ за м2 площади загородного дома (коттеджа, дачи, бани), квартиры, офиса, производственного здания, коммерческого помещения.

Площадь, кв.м.

до 150

151-200

201-300

301-500

свыше 500

Цена, руб.

от 1 600 руб/кв.м.

от 1 500 руб/кв.м.

от 1 400 руб/кв.м.

от 1 200 руб/кв.м.

от 1 000 руб/кв.м.

Стоимость указана только на электромонтажные работы, без стоимости материала.

Монтаж электрики под ключ! Работаем с 2008 года. Оплата по факту по утвержденным ценам в смете, гарантия от 25 лет на все работы и услуги. +7 (911) 924-03-25

Наши некоторые работы по монтажу электрики в загородных домах (газобетон, кирпичный, брус, бревно, каркасный, щитовой), на даче, в квартирах и офисах сделанные нашей фирмой в С-Пб и ЛО.
электрика под ключ в каркасном доме 190 метров
Разводка электрики под ключ в каркасном доме 190 м. кв. подробнее
электрика под ключ в кирпичном доме 200 метров
Монтаж электрики под ключ в кирпичном доме 200 м. кв. подробнее
разводка электрики в доме из кирпича
Черновая разводка электрики в кирпичном доме в гофре и штробах подробнее
разводка электрики в доме из бруса
Разводка электрики в деревянном доме из профилированного бруса подробнее
замена электрики в квартире
Замена электрики в 3-х комн. квартире дом новостройка подробнее
электрика в одноэтажном доме
Электрика в одноэтажном доме сделана в кабель каналах подробнее
электромонтаж в газобетонном доме
Электромонтаж в газобетонном доме сделан под ключ подробнее
электромонтажные работы в доме из газобетона
Электромонтажные работы сделаны в доме из газобетона под ключ подробнее
электропроводка в каркасном доме
Разводка электропроводки в каркасном доме под ключ подробнее
монтаж скрытой электрики в каркасном доме
Монтаж скрытой электрики в каркасном доме под ключ подробнее
электрика под ключ в загородном доме
Монтаж электрики под ключ в загородном доме 130 м. кв. подробнее
электрика под ключ в таунхаусе
Монтаж электрики под ключ в таунхаусе 240 м. кв. подробнее

Скидка на монтаж электрики в квартире.

При монтаже электрики от суммы в 80 000 рублей, Мы сделаем Вам скидку 18%.

заказать расчет